Paris (75012) Appartement 3 pièces 2 chambres 43m2, Paris 12ème
Nation - Porte de Vincennes. Au 2ème et dernier étage par escalier d'un immeuble 1890 situé au calme absolu dans une impasse, appartement traversant (Nord-Est et Sud-Ouest), à rénover, de 43.22 m2 loi Carrez.
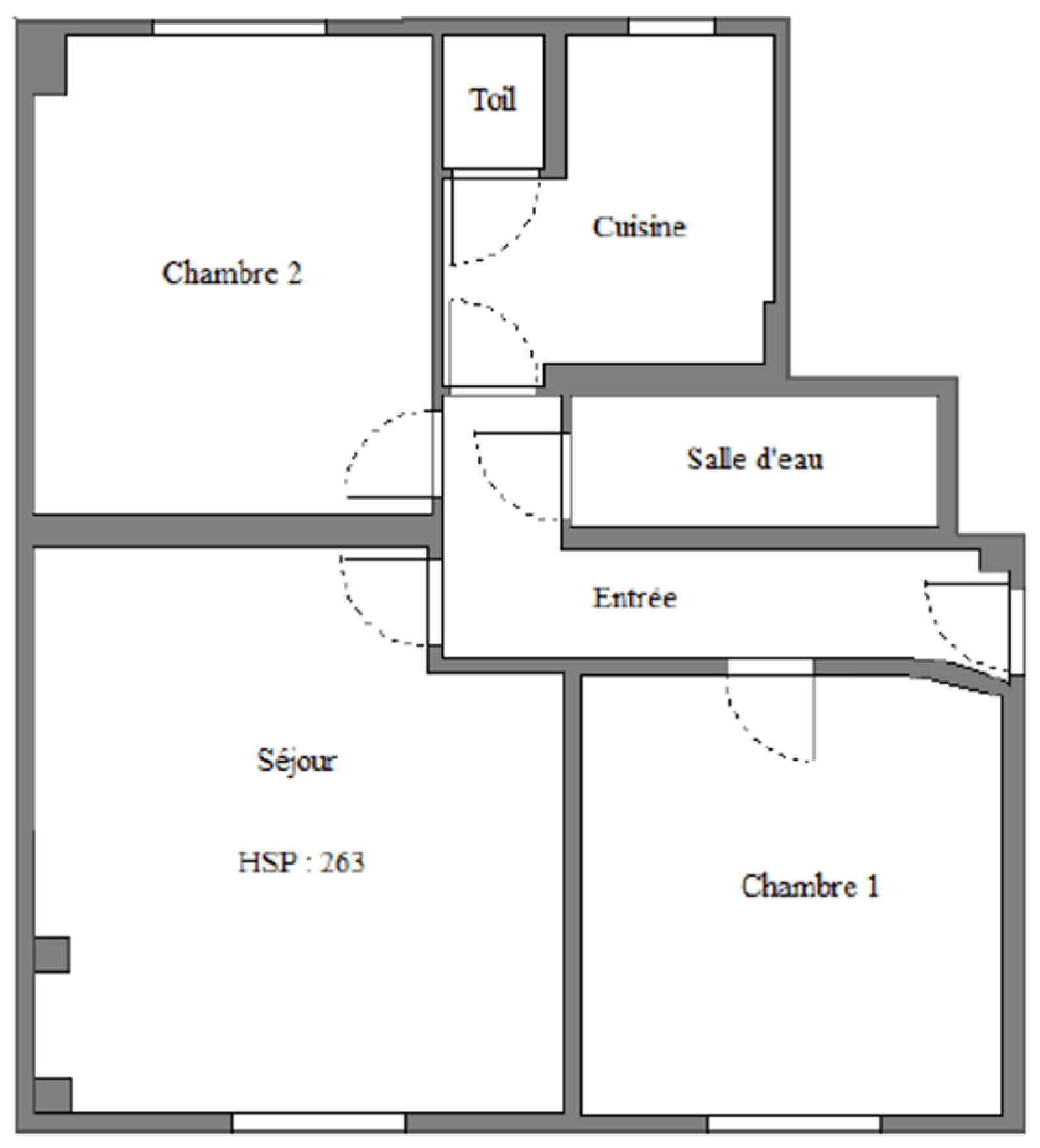
Le bien est composé d'une entrée desservant un séjour, deux chambres, une cuisine séparée, une salle d'eau, un wc indépendant.
On aime : l'atmosphère paisible à deux pas de la rue du Rendez-vous et du Cours de Vincennes, le potentiel après rénovation, la proximité des commerces, des écoles et de l'annexe de la Sorbonne, le choix des transports.
Métro porte de Vincennes (ligne 1) et Tramway 3a & 3b à 3 minutes, métro Picpus (ligne 6) à 7 minutes, métro Maraîchers (ligne 9) à 10 minutes, Nation (lignes 1, 2, 6, 9 et RER A). Nombreux bus (86, 215, 351, 26, 64, 29, 56).
Les caractéristiques Du bien
Les infos Financières
La base légale du traitement repose sur l’intérêt légitime de l'Agence / du Réseau.
Elles sont conservées jusqu'à demande de suppression et sont destinées à l'Agence / au Réseau.
Conformément à la loi « informatique et libertés », vous pouvez exercer votre droit d'accès aux données vous concernant et les faire rectifier en contactant l'Agence / le Réseau.
Si vous estimez, après avoir contacté l'Agence / le Réseau, que vos droits « Informatique et Libertés » ne sont pas respectés, vous pouvez adresser une réclamation à la CNIL.
Nous vous informons de l’existence de la liste d'opposition au démarchage téléphonique « Bloctel », sur laquelle vous pouvez vous inscrire ici : https://www.bloctel.gouv.fr
Dans le cadre de la protection des Données personnelles, nous vous invitons à ne pas inscrire de Données sensibles dans le champ de saisie libre
Ce site est protégé par reCAPTCHA, les Politiques de Confidentialité et les Conditions d'Utilisation de Google s'appliquent.
Détails des diagnostics énergétiques
