Courbevoie (92400) Appartement 4P - 2/3 chambres - 88 m2 - Balcons - Parking à Courbevoie-Bécon (92)
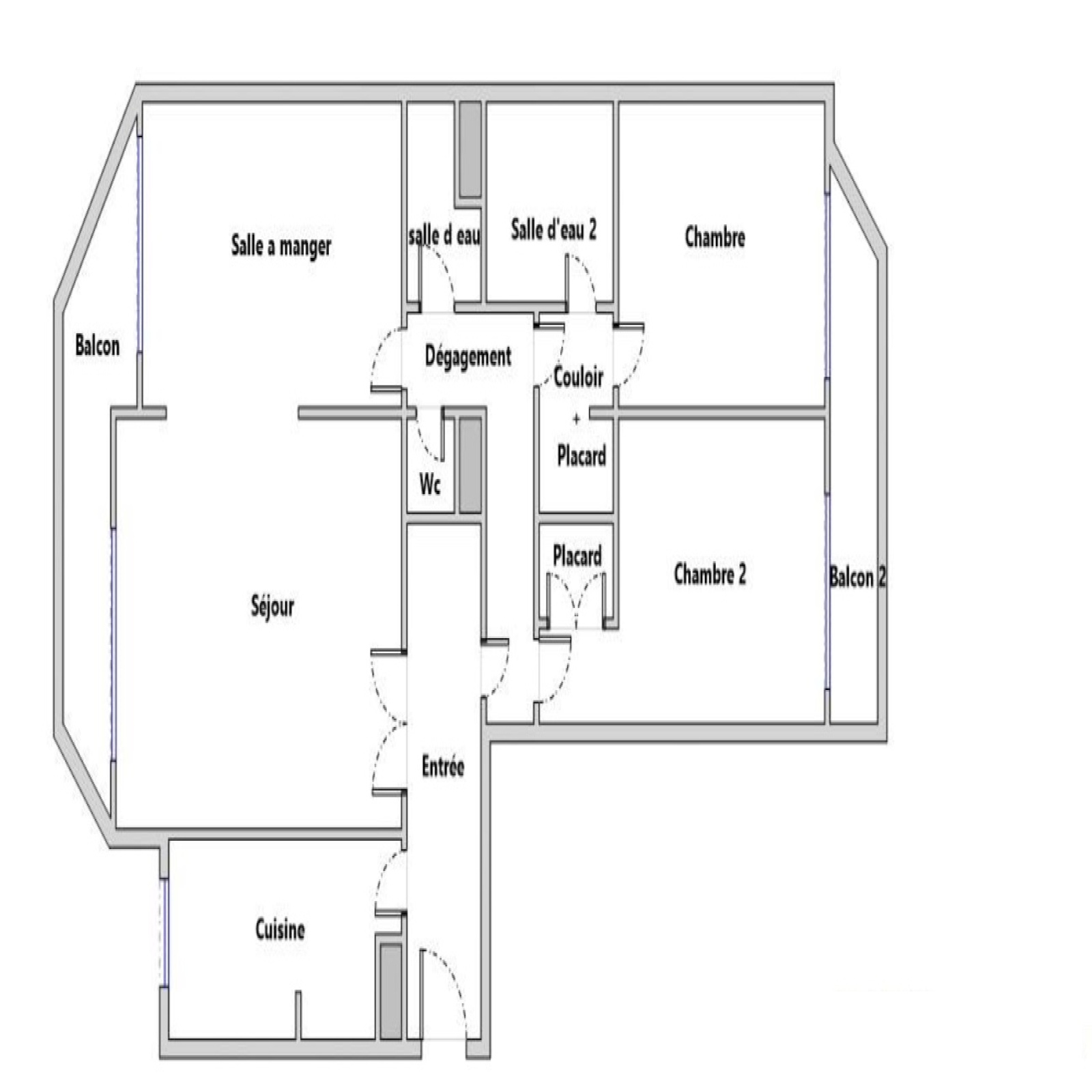
*Exclusivité* - Quartier Bécon - Au 2ème étage sur 7 par ascenseur d'un immeuble semi-récent sécurisé avec gardienne, appartement 4 pièces à rénover, traversant, exposé Est-Ouest, d'une surface de 87,93 m2 loi Carrez et composé de :
une entrée avec dressing, un séjour ouvert sur une salle à manger / bureau, une cuisine séparée (possibilité de l'ouvrir sur le séjour), deux belles chambres avec placards (possibilité trois), deux salles de douches, un wc séparé, deux balcons.
Une cave et une place de parking en sous-sol complètent ce bien.
On aime :
L'excellente distribution des pièces et leurs volumes, la fonctionnalité, le potentiel après rénovation, le quartier résidentiel, les extérieurs (chaque pièce de l'appartement bénéficie d'une baie coulissante donnant accès à l'un des deux balcons), la vue dégagée et la vue Seine. À 5 min à pieds de la Gare d'Asnières (Trains J & L - Saint-Lazare ou La Défense en 10 minutes) et à 12 min à pieds du métro Pont de Levallois (ligne 3). Lycée Montalembert à 8 min à pieds.
Photos non contractuelles, simulation d'ambiance après rénovation.
Les informations sur les risques auxquels ce bien est exposé sont disponibles sur le site Géorisques
Les caractéristiques Du bien
Les infos Financières
Les infos Energetiques
Montant estimé des dépenses annuelles d'énergie de ce logement pour un usage standard est compris entre 1 640 € et 2 270 € . 2021 étant l'année de référence des prix de l'énergie utilisés pour établir cette estimation.
Localisation Du bien
-
Commerces et santé
-
Loisirs
-
Ecoles
-
Transports
-
Pratique
Détails des diagnostics énergétiques
Montant estimé des dépenses annuelles d'énergie de ce logement pour un usage standard est compris entre 1 640 € et 2 270 € . 2021 étant l'année de référence des prix de l'énergie utilisés pour établir cette estimation.
