Le Raincy (93340) Superbe maison familiale
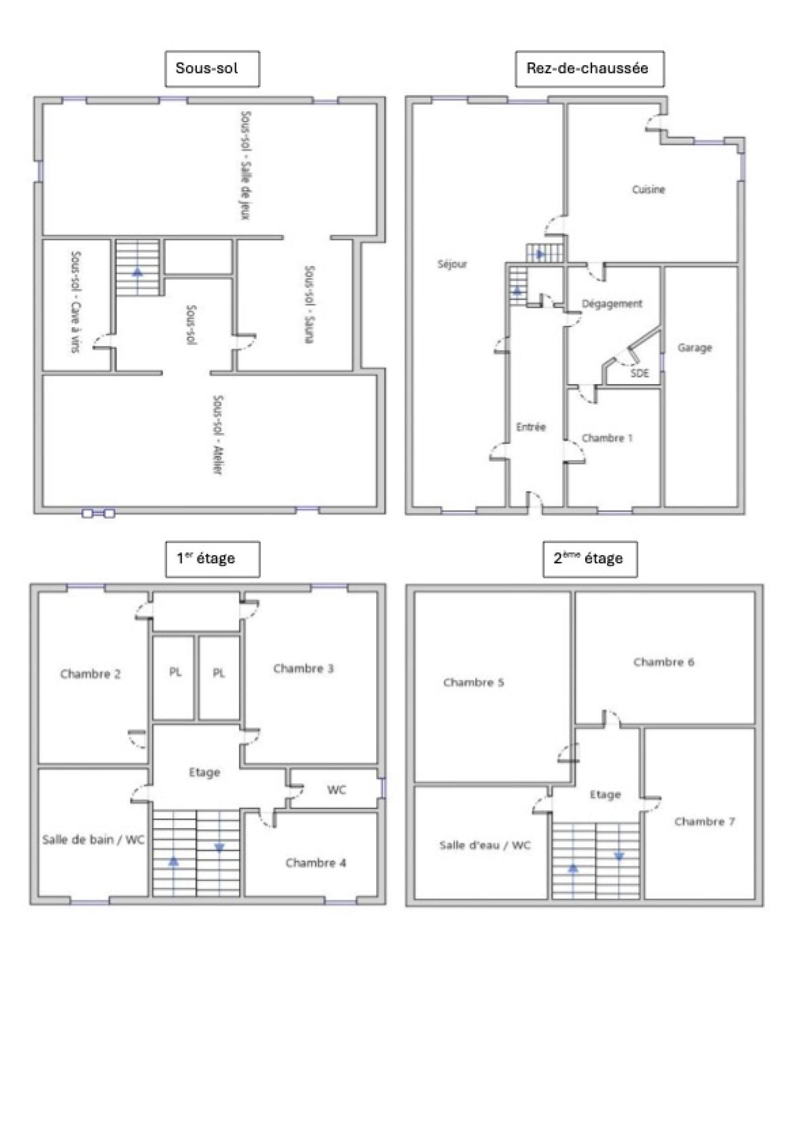
Quartier Thiellement - Dans un cadre calme, prisé, verdoyant et sans vis-à-vis, superbe maison bourgeoise, construite en 1850 et agrandie en 1982, d'environ 280 m2 habitables et 400 m2 au sol, bâtie sur un terrain de 935 m2 arboré et parfaitement entretenu. La maison est composé d'une galerie d'entrée, un triple séjour exposé Est et Ouest, une grande cuisine dinatoire séparée et équipée donnant sur le jardin et la terrasse, sept chambres climatisées (dont une au RdC, trois au 1er étage et trois au 2ème étage), trois salles de bains-douches, trois WC. Le sous-sol total comprend une salle de jeux - home cinéma (avec fenêtre cour anglaise, plafond acoustique et poêle finlandais), un sauna trois places et une 4ème douche, une cave à vins, un atelier et espace technique. Un garage fermé pour deux voitures et un abri pour une 3ème voiture complètent le bien.
On aime : les volumes, la hauteur sous plafond, l'atmosphère paisible et cosy, les moulures, les éléments anciens d'origine ou chinés (carreaux de ciment, trumeau, parquet chêne point de Hongrie...), le bel espace extérieur, le calme, l'absence de vis-à-vis. La maison familiale du bonheur !
Commerces, écoles publiques et privées à moins de 500m. Gare RER E "Le Raincy - Villemomble - Montfermeil" à 1,2 km (6 minutes en bus)
Les informations sur les risques auxquels ce bien est exposé sont disponibles sur le site Géorisques
Les caractéristiques Du bien
Les infos Financières
Ce site est protégé par reCAPTCHA, les Politiques de Confidentialité et les Conditions d'Utilisation de Google s'appliquent.
