
Cerdon (45620) Maison de village - 220m2 - 5 chambres - 2,8ha
Sologne - À 50 km d'Orléans et 130 km au Sud de Paris, sur un terrain de 2.8 ha avec parc arboré, prés et étang, une maison de charme entièrement rénovée d'une surface habitable d'environ 220 m2 sur deux niveaux.
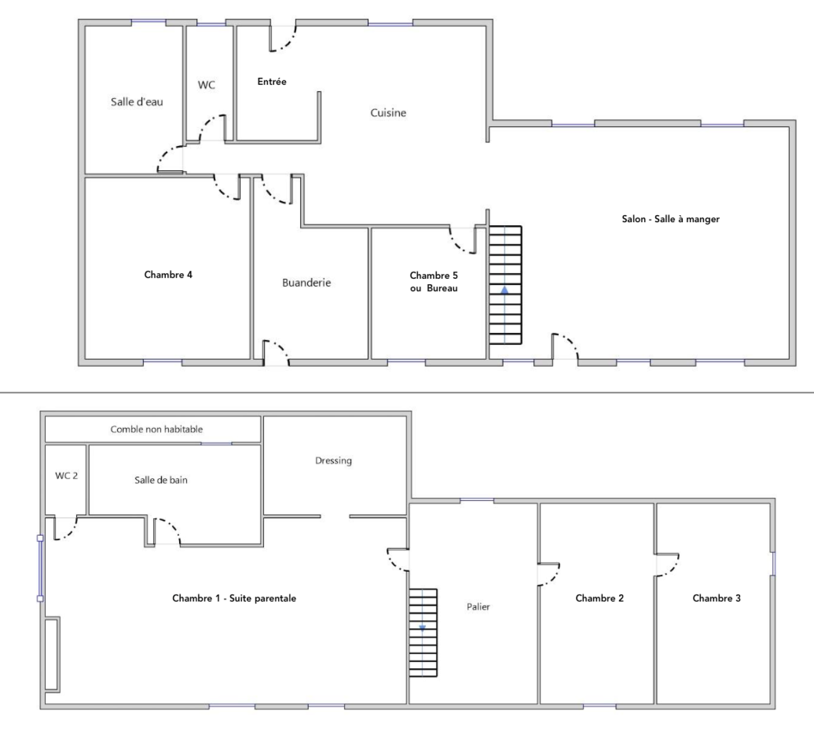
Le rez-de-chaussée présente une entrée (avec trappe d'accès à la cave), une cuisine dinatoire aménagée et équipée donnant sur un double séjour de 65 m2 avec insert à granulés et ouvrant sur une grande terrasse de 60 m2, deux chambres (ou une chambre et un bureau), une salle d'eau avec douche à l'italienne, un wc indépendant.
Au 1er étage, un large palier aménagé de sofas distribue une suite parentale avec balcon - salle de bains-douches - dressing - toilettes séparés, ainsi que deux belles chambres en enfilade.
La maison est entourée d'un grand espace extérieur comprenant un parc arboré (séquoia géant, chênes de 600 ans, cèdre...), un étang (à remettre en état), deux prés (pour des chevaux par exemple), plusieurs cabanons/remises. Environ 3000 m2 sont encore constructibles. Le terrain est piscinable. L'allée d'entrée est sécurisée par un portail électrique avec caméra.
On aime : l'absence de vis à vis, l'équilibre de cette bâtisse datant des 17ème et 19ème siècle, ayant conservé le charme de l'ancien (poutres, pierre au sol) tout en ayant intégré le confort et la technicité moderne (double vitrage, fibre optique), l'excellent diagnostic énergétique (DPE C - GES A), l'authenticité de ce village qui a reçu la distinction "Village de caractère du Loiret".
Les informations sur les risques auxquels ce bien est exposé sont disponibles sur le site Géorisques
Les caractéristiques Du bien
Les infos Financières

La base légale du traitement repose sur l’intérêt légitime de l'Agence / du Réseau.
Elles sont conservées jusqu'à demande de suppression et sont destinées à l'Agence / au Réseau.
Conformément à la loi « informatique et libertés », vous pouvez exercer votre droit d'accès aux données vous concernant et les faire rectifier en contactant l'Agence / le Réseau.
Si vous estimez, après avoir contacté l'Agence / le Réseau, que vos droits « Informatique et Libertés » ne sont pas respectés, vous pouvez adresser une réclamation à la CNIL.
Nous vous informons de l’existence de la liste d'opposition au démarchage téléphonique « Bloctel », sur laquelle vous pouvez vous inscrire ici : https://www.bloctel.gouv.fr
Dans le cadre de la protection des Données personnelles, nous vous invitons à ne pas inscrire de Données sensibles dans le champ de saisie libre
Ce site est protégé par reCAPTCHA, les Politiques de Confidentialité et les Conditions d'Utilisation de Google s'appliquent.
Détails des diagnostics énergétiques
